Rose Hill Multifamily

Kirkland, Washington

Work completed at MG2

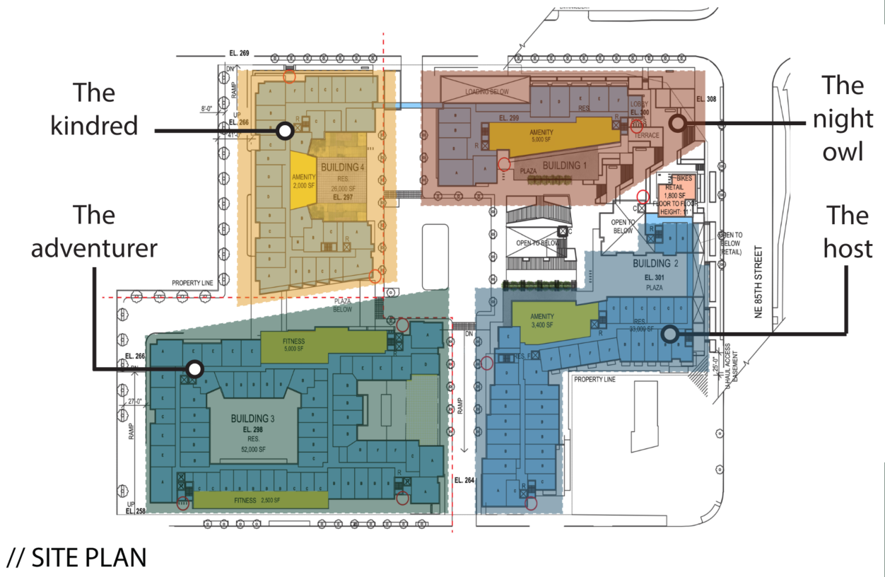
This four-building, new-build multifamily campus in downtown Kirkland with over 830 residential units was designed as a cohesive family of spaces, with each building offering a distinct identity. Curated retail and amenity programs, unified by a shared design language, support a broad resident demographic and foster a multigenerational community.

Previous
Previous

Confidential Food Hall

Next
Next

Farmhouse Inn